> Home > What to visit > Palaces and Monuments

T08: Torre di Sant'Agata Asciano
PALACES AND MONUMENTS
PHONE NUMBERS AND TIMES
T08: Torre di Sant'Agata
Business card (vCard)
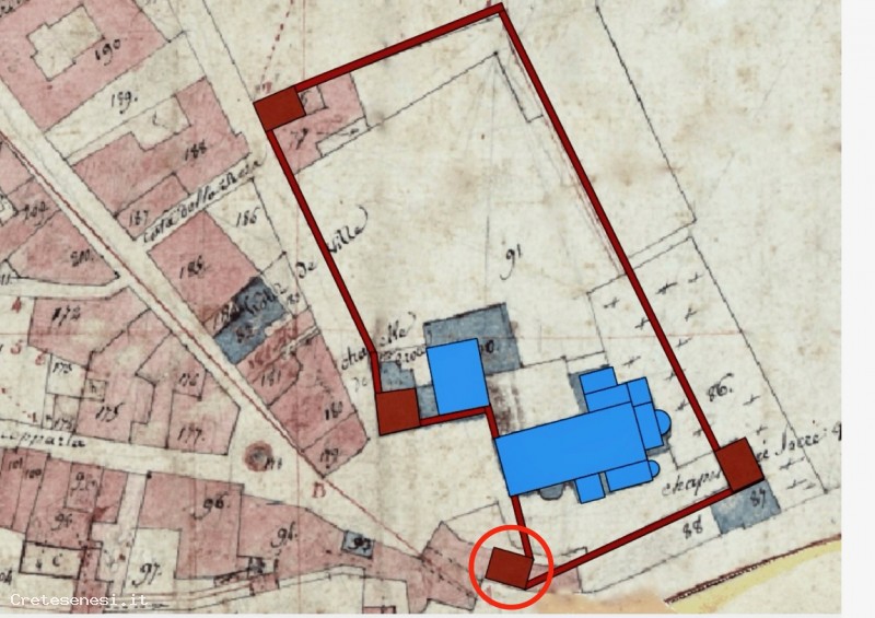
The tower, part of the fortification protecting the Pieve di Sant'Agata, was later incorporated into the large building designed to fortify the gateway to the village, presumably at the end of the 15th century.
Click here to access the Walls navigator, which allows you to consult detailed information.
STAY NEARBY
LA PACE
ASCIANO
The "La Pace" hotel is located in Asciano, a village in the heart of the Crete S...COSTA REGOLI
ASCIANO
Newly built farmhouse, set in the open countryside and away from noise. Location within wa...SAN SEBASTIANO
ASCIANO
5 minutes on foot from the village of Asciano and near Siena, in the heart of the Crete Se...DINING & ENTERTAINMENT NEARBY
La GARBATA Pasticceria Gelateria
ASCIANO
Local open since May 2018: new as a commercial building, it is characterized by a modern a...Bar GASTON di Davide Manieri & C.
ASCIANO
New place run by young people, for young and "differently young" people. &nbs...Ristorante L'Angolo dello Sfizio
ASCIANO
The Angle of Sfizio is located in the main street of the old town of Asciano. The resta...


